Home
Featured Work
Store
FAQ
About
Contact

onward design collaborative

Home
Featured Work
Store
FAQ
About
Contact
Enscape_2026-02-04.png
Enscape_2026-02-07.png
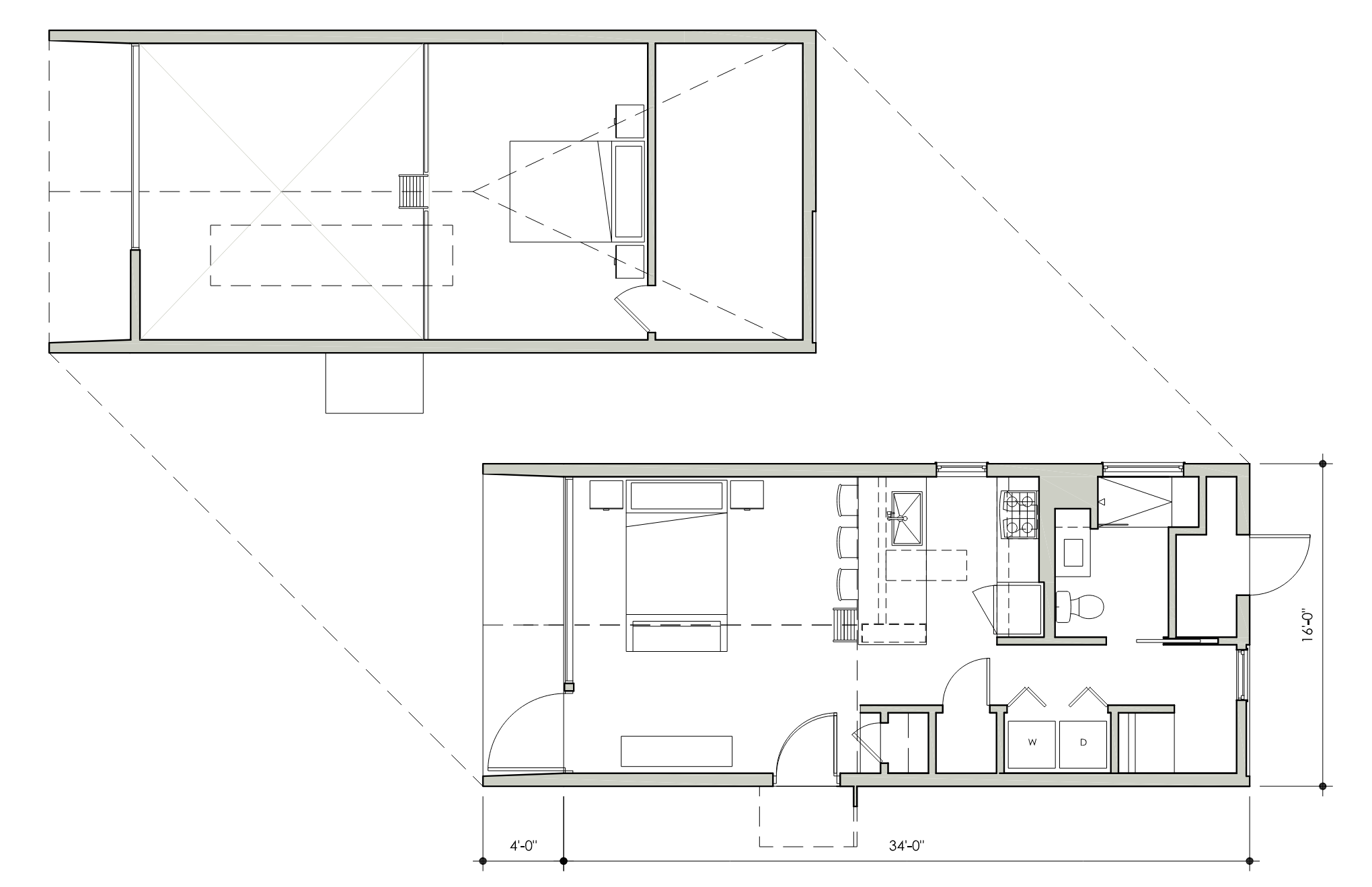
P2.png
Enscape_2026-02-07 Sm Cabin.png
P1.png
1 2 3 4 5
Previous Next
Enscape_2026-02-04.png
Enscape_2026-02-07.png
P2.png
Enscape_2026-02-07 Sm Cabin.png
P1.png

Powered by Squarespace.  Content used with permission from Design Trust For Public Art Space.